Погреб ПП 1 Long

295 830
много арт. R363
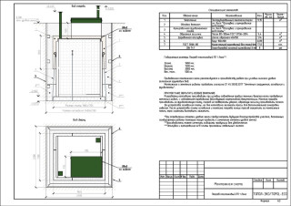
  • Длина — 1,66 м
  • Ширина — 1,5 м
  • Высота — 3 м
  • Вес — 500 кг

Представляем пластиковый погреб с продуманной конструкцией и современными техническими характеристиками. Погреб ПП 1 Лонг отличается от стандартной модели большим весом и высотой (выше на 50 см и тяжелее на 30 кг). Полезный объем при этом остался без изменения и составляет 4 м³.  Это надежное сооружение, соответствующее стандартам герметичности и экологической безопасности, полностью готовое к эксплуатации. Такой погреб идеально подходит для круглогодичного хранения продуктов питания, таких как овощи, фрукты, соленья, компоты и другие заготовки.

Изготовленный из пищевого полипропилена, он устойчив к коррозии и гниению, что обеспечивает долговечность до 70 лет при правильной эксплуатации.

Преимущества данной модели:

  • Долговечность. Погреб марки “Топол-Эко” прослужит более семидесяти лет благодаря качественным материалам и современным технологиям производства.
  • Высокое качество. Производство осуществляется на современном оборудовании под строгим контролем на каждом этапе.
  • Герметичность и надежность. Усиленный корпус из полипропиленовых листов толщиной 80 мм и герметичный электровоз обеспечивают надежную защиту.
  • Экологичность. Используемый пищевой полипропилен обладает уникальными физическими и химическими свойствами, а естественная вентиляция исключает риск появления грибка внутри погреба.
  • Эффективная теплоизоляция. Корпус дополнительно утепляется до глубины промерзания для защиты от холода.
  • Простота установки. Монтаж возможен в любой тип почвы
  • Удобство и безопасность в использовании. В числе дополнительных опций — лестница с противоскользящим покрытием, электроснабжение с защитой от влаги и пыли, а также гладкие поверхности из полипропилена для легкой очистки.
Вам также может понравиться
Погреб ПП 1
много арт. R362
много арт. R362
259 470
много арт. R370
343 710
Погреб ПП 2
много арт. R364
много арт. R364
312 750
Погреб ПП 2 Long
много арт. R365
много арт. R365
351 360
много арт. R371
399 150
Погреб ПП 3
много арт. R366
много арт. R366
394 650
Погреб ПП 3 Long
много арт. R367
много арт. R367
435 330
много арт. R372
481 410

Напишите свой вопрос
и мы ответим в ближайшее время

Также мы на связи в WhatsApp и Telegram

Сообщение отправлено

На главную